Woonoppervlakte
Circa 90 m²
Inhoud
Circa 338 m³
Bouwjaar
Gebouwd in 2018
Aantal kamers
4 kamers (2 slaapkamers)

Varsenerstraat 20

7731 DC, Ommen (Overijssel)

Zeer complete en luxe afgewerkte Maisonette in het hartje centrum van Ommen met niet alleen een eigen parkeerplaats in de inpandige garage op de begane grond maar tevens een groot dakterras van wel 42 m²!

Het complex is gebouwd in 2018 met hoofwaardige materialen en dus ook uiterst duurzaam, nadien is er door de VVE een liftinstallatie gerealiseerd waardoor het appartement tevens gemakkelijk te bereiken is naast de aanwezige trap.

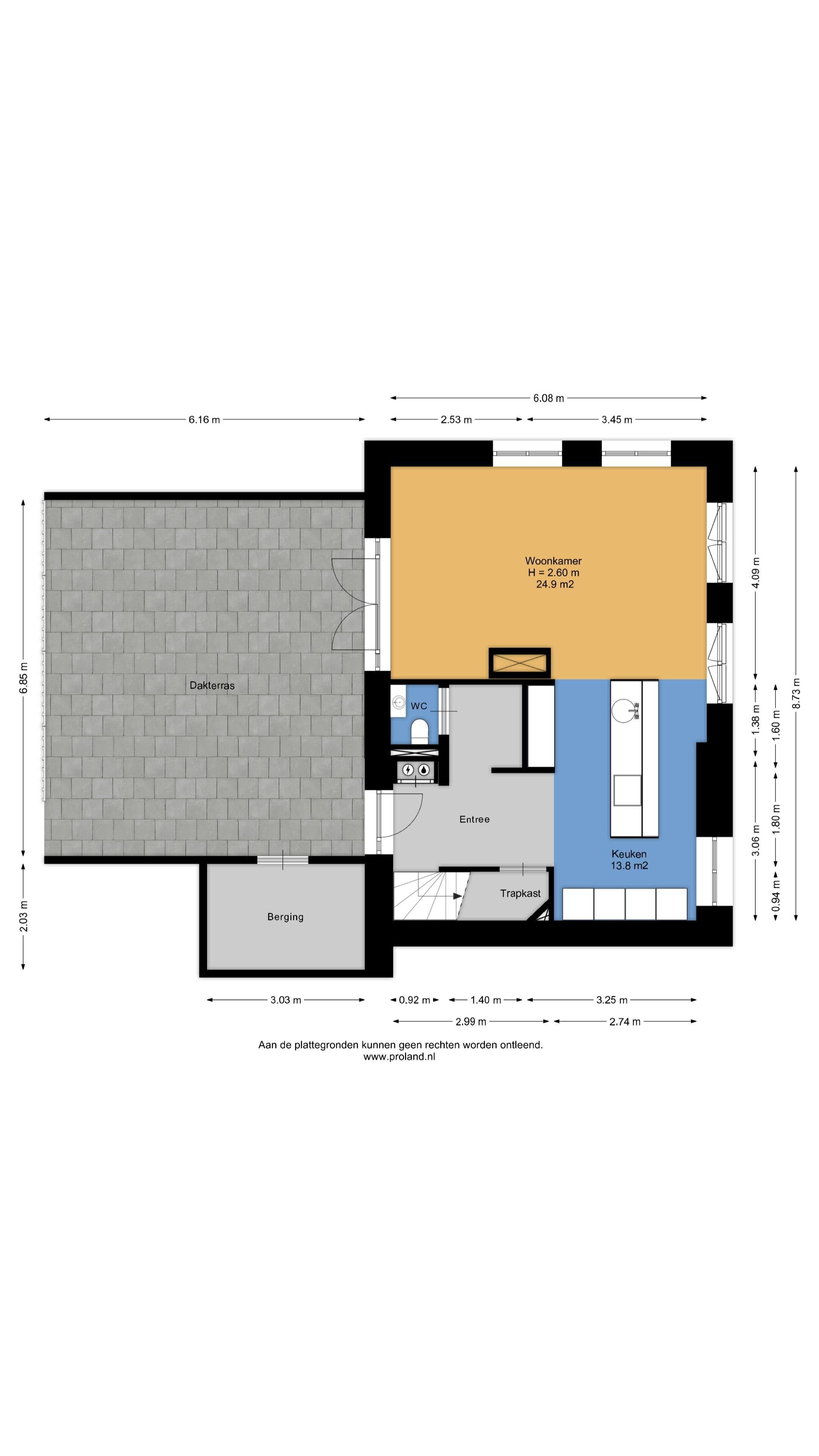
Eenmaal de auto in de stalling te hebben gezet (elektrische toegangsdeur) loop je naar de voordeur van het complex waar je met de trap of met de lift naar de eerste woonlaag gaat. Hier loop je via de achterzijde van de dakterrassen naar het laatste en eigen terras, via de voordeur kom je in de ruime hal, deze heeft naast een modern toilet, meterkast en trapopgang ook een ruime garderobe-nis. Vervolgens kom je in de ruime open keuken (hier zijn geen deuren aangebracht waardoor de ruimtes in elkaar over gaan), een zeer luxe keukenopstelling met fraaie apparatenwand, groot kookeiland en een koffie corner gedeelte en veel en luxe inbouwapparatuur!

Vervolgens krijg je de heerlijke ruime en lichte woonkamer (aan 3 zijden glas, 2 Franse balkons) en deze beschikt over een eigen gashaard, dat zie je niet veel bij appartementen. Via openslaande deuren kom je op het riante dakterras van 42 m², hier is handig een eigen berging voor de kussen en overige opslag.

Via de vaste trap kom je op de tweede woonlaag, hier is een berging waar ook de installaties zijn, een separaat toilet, de hoofdslaapkamer en tweede slaapkamer en uiteraard een badkamer. De badkamer is tevens zeer luxe afgewerkt met onder andere een heerlijk comfortabele sun shower en grote inloopdouche.

Tijdens de bouw konden er nog speelse keuzes gemaakt worden, hierdoor is een hele fijne indeling ontstaan, daarnaast is er met de afwerking gekozen uit allemaal hoogwaardige materialen en strakke afwerkingen waar je ook bent in het appartement.

Nieuwsgierig geworden?
Bij voorkeur ontvangen wij een bezichtigingsaanvraag per mail of via het contactformulier op Funda, dan kunnen wij de reacties inventariseren en aansluitend contact met u opnemen voor het maken van een afspraak.

Plattegronden

Overdracht

Vraagprijs
€ 419.000 k.k.
Status
Verkocht
Bijdrage VvE
€ 190,73 per maand

Bouw

Object type
Maisonnette (appartement)
Soort bouw
Bestaande bouw
Bouwjaar
2018
Soort dak
Samengesteld dak bedekt met pannen
Keurmerken
Woningborg Garantiecertificaat

Oppervlakte en inhoud

Woonoppervlakte
90 m²
Inhoud
338 m³
Externe bergruimte
6 m²
Gebouwgeb. buitenruimte
42 m²

Indeling

Aantal kamers
4 kamers (2 slaapkamers)
Aantal badkamers
1 badkamer en 2 aparte toiletten
Aantal woonlagen
2 woonlagen
Gelegen op
1e woonlaag
Voorzieningen
Dakraam, frans balkon, glasvezelkabel, en mechanische ventilatie

Energie

Energielabel
A
Isolatie
Dakisolatie, dubbel glas, hr-glas, muurisolatie en vloerisolatie
Verwarming
Cv-ketel, gashaard en gedeeltelijke vloerverwarming
Warm water
Cv-ketel
Cv ketel
Intergas hre (gas gestookt combiketel uit 2018, eigendom)

Buitenruimte

Ligging
In centrum
Balkon / dakterras
Dakterras aanwezig
Tuin
Zonneterras
ligging tuin
Gelegen op het zuidoosten

Bergruimte

Schuur / berging
Aangebouwde houten berging
Voorzieningen
Elektra

Parkeergelegenheid

Soort parkeergelegenheid
Parkeergarage

VvE checklist

Inschrijving KvK
Ja
Jaarlijkse vergadering
Ja
Periodieke bijdrage
Ja (€ 190,73 per maand)
Reservefonds aanwezig
Ja
Onderhoudsplan
Ja
Opstalverzekering
Ja

Energieverbruik in Ommen

Energielabel deze woning

Energielabel A

Publicatie energielabel:

Stroomverbruik per jaar

2140 kWh

(Gemiddelde appartement in Ommen)

Gasverbruik per jaar

910 m³

(Gemiddelde appartement in Ommen)

* Cijfers zijn afkomstig van het CBS en bedoeld als indicatie en kunnen verschillen voor deze woning

Indicatie hypotheeklasten

Eigen inleg:
Spaargeld / overwaarde

Rente:
Laagste 10-jaars rente

Laagste 10-jaars rente

2,76% - Centraal Beheer Groen... - NHG


2,98% - Centraal Beheer Groen... - 80%

Laagste 20-jaars rente

3,19% - Centraal Beheer Groen... - NHG


3,31% - Centraal Beheer Groen... - 80%

Laagste 30-jaars rente

3,34% - Centraal Beheer Groen... - NHG


3,47% - Centraal Beheer Groen... - 80%


Hypotheek:

Bruto maandlasten: € 0 p/m

Netto maandlasten: € 0 p/m

Hoe berekenen we dit?

Het rentepercentage is gebaseerd op de laagste 10-jaars vaste rente voor één hypotheekdeel. De vermelde rente (2.98% zonder NHG) is gecontroleerd op 14-08-2025. Deze berekening is gebaseerd op een annuïteitenhypotheek die volledig wordt afgelost, waarbij de maandlasten gedurende de gehele looptijd gelijk blijven. De werkelijke rente en netto maandlasten kunnen variëren, afhankelijk van uw persoonlijke situatie en de hypotheekverstrekker. Raadpleeg een financieel adviseur voor een nauwkeurige berekening en advies. Aan deze berekening kunnen geen rechten worden ontleend; het dient enkel als indicatie.

Documentatie

Kadastrale kaart

Leefomgeving

Plattegronden PDF

WOZ waarderapport

BAG uittreksel

Zonnegrenzen bekijken

Op de kaart

Inwoners in Ommen

Cijfers voor postcodegebied 7731

Totaal aantal inwoners
12050 inwoners
Mannen
50%
Vrouwen
50%

Inwoners in Ommen

Cijfers voor postcodegebied 7731

tot 15 jaar
16%
15 tot 25 jaar
10%
25 tot 35 jaar
21%
45 tot 65 jaar
28%
65 en ouder
25%

Huishoudens in Ommen

Cijfers voor postcodegebied 7731

Eenpersoons zonder kinderen
33%
Meerpersoons zonder kinderen
35%
Huishoudens zonder kinderen
68%

Huishoudens in Ommen

Cijfers voor postcodegebied 7731

Huishoudens met één kind
5%
Huishoudens met meerdere kinderen
27%
Huishoudens met kinderen
32%

Woningen in Ommen

Cijfers voor postcodegebied 7731

Woningen voor 1945
8%
Woningen tussen 1945 en 1965
13%
Woningen tussen 1965 en 1975
23%
Woningen tussen 1975 en 1985
18%
Woningen tussen 1985 en 1995
15%

Woningen in Ommen

Cijfers voor postcodegebied 7731

Woningen tussen 1995 en 2005
11%
Woningen tussen 2005 en 2015
8%
Woningen na 2015
4%
Huurwoningen
30%
Koopwoningen
70%

Overige in Ommen

Cijfers voor postcodegebied 7731

Gemiddelde WOZ waarde
€ 250.000,-
Personen onder de 65 met uitkering
7%

Overige in Ommen

Cijfers voor postcodegebied 7731

Adressen per km²
706
Stedelijkheid (schaal 1 op 5)
40%
Postcode kaart 7731 Gemeente kaart ommen

Sallands Goed, Registermakelaars & Taxateurs

Indien u vragen heeft of u wilt een bezichtiging inplannen, dan kunt u gebruik maken van het formulier hiernaast. Er zal daarna op korte termijn contact met u worden opgenomen.

Contact opnemen

Contactgegevens

Waarom een NVM MAKELAAR, waarom Sallands Goed

Het is altijd verstandig om een NVM makelaar in te schakelen. Zij hebben immers de kennis, kennen de weg en beschikken over de juiste middelen om samen met u, op een verantwoorde wijze uw woning te verkopen. Het feit dat u er NVM woningmakelaar inschakelt, geeft aan dat u de verkoop niet aan zo maar een makelaar overlaat. U kiest voor de kwaliteit waar het NVM-logo voor staat.
Waarom een NVM MAKELAAR, waarom Sallands Goed
Reviews Sallands Goed, Registermakelaars & Taxateurs

Varsenerstraat 20, Ommen

€ 419.000 k.k. - Verkocht

Helaas, deze woning is verkocht!

Net te laat, deze woning is al verkocht. Laat een zoekopdracht bij ons achter zodat wij u direct kunnen helpen wanneer er nieuw aanbod beschikbaar komt.